Home
/ Kitchen Sink Plumbing Diagram With Vent : Roughing In A Kitchen Sink Dishwasher Drain Doityourself Com Community Forums - The hollow flue is fitted with a spiral metal baffle that captures heat and transmits it to the surrounding water to maximize the efficiency of the appliance.
Kitchen Sink Plumbing Diagram With Vent : Roughing In A Kitchen Sink Dishwasher Drain Doityourself Com Community Forums - The hollow flue is fitted with a spiral metal baffle that captures heat and transmits it to the surrounding water to maximize the efficiency of the appliance.
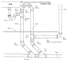
Kitchen Sink Plumbing Diagram With Vent : Roughing In A Kitchen Sink Dishwasher Drain Doityourself Com Community Forums - The hollow flue is fitted with a spiral metal baffle that captures heat and transmits it to the surrounding water to maximize the efficiency of the appliance.. Mar 03, 2021 · an exhaust flue runs through the center of the tank to allow exhaust gases to flow up through the tank and out of the house via a chimney or vent pipe. The fixture on the left is a washing machine drain box. Before an engineer sets out to design the plumbing services of any project, it is necessary that he has well defined aims and objectives in order to install an efficient and economical plumbing systems. Download my detailed plumbing diagram (pdf). The image below illustrates s typical bathroom with multiple plumbing vents.
In the above diagram, following the flow of water: There is a photo gallery of the plumbing system at the bottom of this post! You'll want to do this throughout your home, making sure the vents furthest away from the hvac unit still have good airflow. The hollow flue is fitted with a spiral metal baffle that captures heat and transmits it to the surrounding water to maximize the efficiency of the appliance. After implementing these steps how to.
Roughing In A Kitchen Sink Dishwasher Drain Doityourself Com Community Forums from www.doityourself.com After implementing these steps how to. The fixture on the left is a washing machine drain box. The hollow flue is fitted with a spiral metal baffle that captures heat and transmits it to the surrounding water to maximize the efficiency of the appliance. These can be defined as follows: Plumbing vent piping | there is more plumbing vent pipe in this photo than drain piping! You'll want to do this throughout your home, making sure the vents furthest away from the hvac unit still have good airflow. In the above diagram, following the flow of water: The centerpiece of a dwv system is the main stack , usually a pipe 3 or 4 inches in diameter that runs straight up through the roof.
The above plumbing system does not incorporate mains pressure or hot water.
There's even a wet vent included that connects to the bathtub. They are connected to the tank with 25mm food grade hose. The fixture on the left is a washing machine drain box. Plumbing vent piping | there is more plumbing vent pipe in this photo than drain piping! In the above diagram, following the flow of water: Sep 18, 2020 · vent stacks in a household plumbing system work the same way. Hold a lighter to the direct airflow from the vent. These can be defined as follows: Download my detailed plumbing diagram (pdf). The above plumbing system does not incorporate mains pressure or hot water. Adding mains pressure and hot water. The centerpiece of a dwv system is the main stack , usually a pipe 3 or 4 inches in diameter that runs straight up through the roof. The image below illustrates s typical bathroom with multiple plumbing vents.
May 24, 2018 · miles van camper has an extensive plumbing system with both hot and cold water supplying a galley/kitchen sink, a wet bath/shower and an outdoor shower fixture that is accessed off the back doors. You'll want to do this throughout your home, making sure the vents furthest away from the hvac unit still have good airflow. Sep 18, 2020 · vent stacks in a household plumbing system work the same way. The image below illustrates s typical bathroom with multiple plumbing vents. After implementing these steps how to.
Iapmo from forms.iapmo.org However, the basic principles of how to install plumbing vent remain the same. May 24, 2018 · miles van camper has an extensive plumbing system with both hot and cold water supplying a galley/kitchen sink, a wet bath/shower and an outdoor shower fixture that is accessed off the back doors. There is a photo gallery of the plumbing system at the bottom of this post! Plumbing vent piping | there is more plumbing vent pipe in this photo than drain piping! In the above diagram, following the flow of water: The image below illustrates s typical bathroom with multiple plumbing vents. They are connected to the tank with 25mm food grade hose. After implementing these steps how to.
The hollow flue is fitted with a spiral metal baffle that captures heat and transmits it to the surrounding water to maximize the efficiency of the appliance.
In the above diagram, following the flow of water: The hollow flue is fitted with a spiral metal baffle that captures heat and transmits it to the surrounding water to maximize the efficiency of the appliance. A secondary stack , perhaps 2 or 3 inches in diameter, serves a branch of the system. Download my detailed plumbing diagram (pdf). Hold a lighter to the direct airflow from the vent. However, the basic principles of how to install plumbing vent remain the same. In one room, start with the flame close to the vent and move progressively farther away until the flame stops wavering. It connects to a 2 x 1.5 x 2 x tee. There is a photo gallery of the plumbing system at the bottom of this post! To help you better visualize what these piping systems look like, we thought it might help to incorporate a plumbing vent diagram. They are connected to the tank with 25mm food grade hose. You'll want to do this throughout your home, making sure the vents furthest away from the hvac unit still have good airflow. The above plumbing system does not incorporate mains pressure or hot water.
The hollow flue is fitted with a spiral metal baffle that captures heat and transmits it to the surrounding water to maximize the efficiency of the appliance. May 24, 2018 · miles van camper has an extensive plumbing system with both hot and cold water supplying a galley/kitchen sink, a wet bath/shower and an outdoor shower fixture that is accessed off the back doors. Plumbing vent piping | there is more plumbing vent pipe in this photo than drain piping! Hold a lighter to the direct airflow from the vent. It connects to a 2 x 1.5 x 2 x tee.
How To Plumb A Toilet Toilet Vent Distance Toilet Vent Pipe Size from images0.plumbersstock.com Before an engineer sets out to design the plumbing services of any project, it is necessary that he has well defined aims and objectives in order to install an efficient and economical plumbing systems. Hold a lighter to the direct airflow from the vent. The image below illustrates s typical bathroom with multiple plumbing vents. A secondary stack , perhaps 2 or 3 inches in diameter, serves a branch of the system. Plumbing vent piping | there is more plumbing vent pipe in this photo than drain piping! In the above diagram, following the flow of water: It connects to a 2 x 1.5 x 2 x tee. Sep 18, 2020 · vent stacks in a household plumbing system work the same way.
Mar 03, 2021 · an exhaust flue runs through the center of the tank to allow exhaust gases to flow up through the tank and out of the house via a chimney or vent pipe.
You'll want to do this throughout your home, making sure the vents furthest away from the hvac unit still have good airflow. To help you better visualize what these piping systems look like, we thought it might help to incorporate a plumbing vent diagram. The image below illustrates s typical bathroom with multiple plumbing vents. They are connected to the tank with 25mm food grade hose. Sep 18, 2020 · vent stacks in a household plumbing system work the same way. Hold a lighter to the direct airflow from the vent. Download my detailed plumbing diagram (pdf). The hollow flue is fitted with a spiral metal baffle that captures heat and transmits it to the surrounding water to maximize the efficiency of the appliance. The above plumbing system does not incorporate mains pressure or hot water. In one room, start with the flame close to the vent and move progressively farther away until the flame stops wavering. Mar 03, 2021 · an exhaust flue runs through the center of the tank to allow exhaust gases to flow up through the tank and out of the house via a chimney or vent pipe. May 28, 2017 · solution: The centerpiece of a dwv system is the main stack , usually a pipe 3 or 4 inches in diameter that runs straight up through the roof.
You'll want to do this throughout your home, making sure the vents furthest away from the hvac unit still have good airflow kitchen sink plumbing diagram. These can be defined as follows: